K邸離れ新築
住宅 平屋建 木造 2011年9月
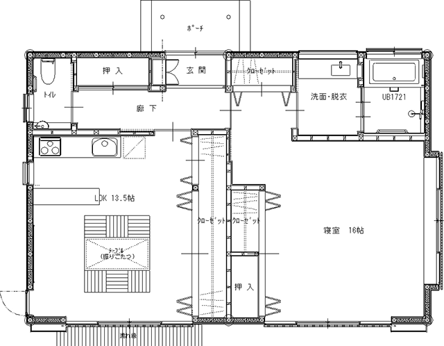
K邸離れ新築設計コンセプトはずばりバリアフリー。外観、大きさなどは、お施主様に明確なイメージがありました。当所として、付加した要素はバリアフリーでした。廊下、洗面、浴室、トイレを広くし、一直線に配置して、車椅子での移動と、介助スペースを確保しました。建具は全て引戸としました。今のところ、お施主様はお元気ですが、10年、20年先を考えて、こうしたほうがいいと思いました。また、現段階では各スペースを広くすることで、高級感が出るという効果を考えています。
外観 最近は珍しくなったかもしれませんが、瓦屋根に軒先だけ鋼鈑の一文字葺になっています。軒天は化粧垂木に杉板となっています。
LDK:大きめの掘りごたつがあって、お孫さんがいらっしゃったときなど、団欒のためのスペースです。窓を大きくとって、開くと濡れ縁があり、庭でバーベキューも出来ます。右側にはミニキッチンがあります。左側には大きいクローゼットがあります。床は他の部屋も全てカリンの無垢フローリングです。
寝室:東側に出窓を配置しています。朝、光が入り過ぎないように外側に格子を設置しました。16帖あり、ゆったりとしたスペースです。
廊下:トイレから廊下を見たところです。正面に見えるのは浴室です。このように全て引戸で一直線に移動することが出来ます。
洗面・脱衣室:全面を鏡にして、カウンター式にしました。ホテルのイメージです。 カウンターは浅くしており。イスに座って使用することも出来ます。